Планировочные решения

Нетиповые планировки типовых квартир — планировочные решения

Нетиповые планировки типовых квартир – планировочные решения»

Как нетиповые планировки типовых квартир раскрывают потенциал пространства

Нетиповые планировки типовых квартир — это пространства, где нет места случайностям. Я превращаю типовые метры в индивидуальные решения: там, где другие видят тесный коридор, появляется система хранения, а «бесполезный» угол становится компактным рабочим местом. Нетиповые планировки квартир, домов и офисов — это не просто перестановка стен, а принципиально иной подход: я нахожу те самые недостающие 3–5 метров, которые решают проблему с кладовой, гардеробом или дополнительным санузлом. Ваши квадратные метры заслуживают большего, чем шаблонные решения.

Типовая планировка однокомнатной квартиры

Типовая планировка однокомнатной квартиры — это старт, с которого всё начинается. Это базовое решение для комфортного пространства, где каждая деталь должна быть стильной и функциональной. Именно с малого шага рождается идея, которая может превратиться в нечто большее. И именно с неё можно начать превращение жилья в уютное и хорошо организованное пространство мечты.

Объект
Типовая однокомнатная квартира
Расположение
Москва
Площадь
50,9 м2
Разработано
Вариант планировочного решения с объединением кухни и гостиной
Before After

Нетиповая планировка типовой квартиры (однокомнатной) 

Для вас я разработаю нетиповую планировку типовой квартиры, а именно, однокомнатной.
Посмотрите, как можно организовать пространство, чтобы оно стало не только уютным, но и максимально функциональным:
— Грамотно встроенные шкафы вместо громоздкой мебели
— Удобное рабочее место, скрытое «на глазах»
— Зонирование с помощью света, цвета и перегородок
— Многофункциональная мебель, которая экономит пространство и создаёт порядок

 

 

Типовая «однушка» может стать стильной городской квартирой, где найдётся место всему — от книг до домашнего офиса.

Планировка типовой двухкомнатной квартиры

Типовая планировка квартиры преображается без перепланировки. Удачная расстановка мебели, умные решения и яркие акценты создают современный интерьер. Обычные метры становятся удобными — легко, практично, доступно.

Before After
Объект
Типовая двухкомнатная квартира
Расположение
Москва
Площадь
50,9 м2
Разработано
Типовое планировочное решение с сохранением существующей планировки

Нетиповая планировка типовой квартиры (двухкомнатной) 

Нетиповая планировка двухкомнатной квартиры — это возможность создать по-настоящему удобное пространство. С помощью грамотного зонирования, нестандартной расстановки мебели и акцентных решений обычная квартира превращается в стильное и функциональное жильё с индивидуальным характером.

Объект
Типовая двухкомнатная квартира
Расположение
Москва
Площадь
50,9 м2
Разработано
Вариант планировочного решения с объединением кухни и гостиной
Before After

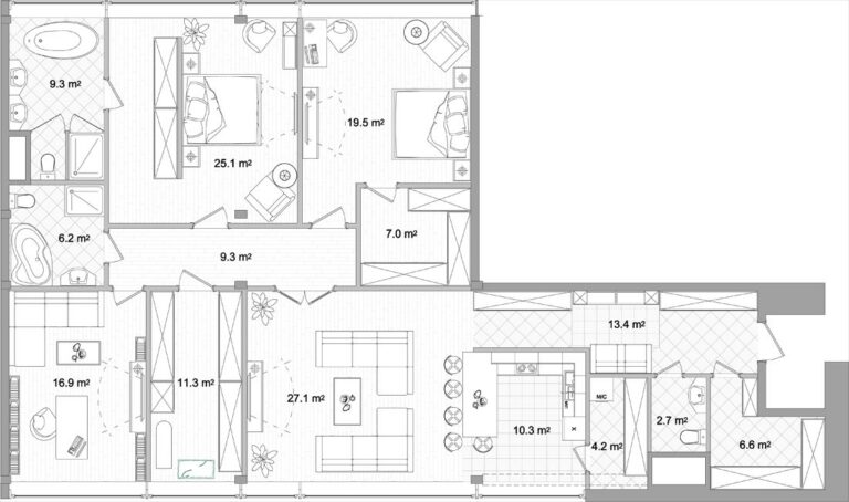
Варианты планировок типовой трехкомнатной квартиры

А если вы стали счастливым обладателем типовой трехкомнатной квартиры - отличная основа для индивидуального планировочного решения. С грамотным использованием пространства и вниманием к деталям вы получите комфортное и уютное жилище, которое подойдёт именно вам.

Нетиповая типовая планировка многокомнатных квартир

Если вы обладатель нетиповой многокомнатной квартиры, перед вами открываются безграничные возможности для организации планировки и пространства. Изучите варианты, представленные ниже — вы обязательно найдете что-то интересное для себя. Или закажите у меня авторский проект планировки именно вашей квартиры — практичный, удобный и отражающий ваш вкус.

Готовы  реализовать свой проект?

Отправьте сообщение! Обсудим идеи и найдем оптимальное решение!

Предложения о сотрудничестве отправляйте исключительно на электронную почту 

    Отправить сообщение

    16 + двадцать =

    Генплан коттеджного поселка, визуализация с высоты птичьего полота. "Филатовские резиденции"